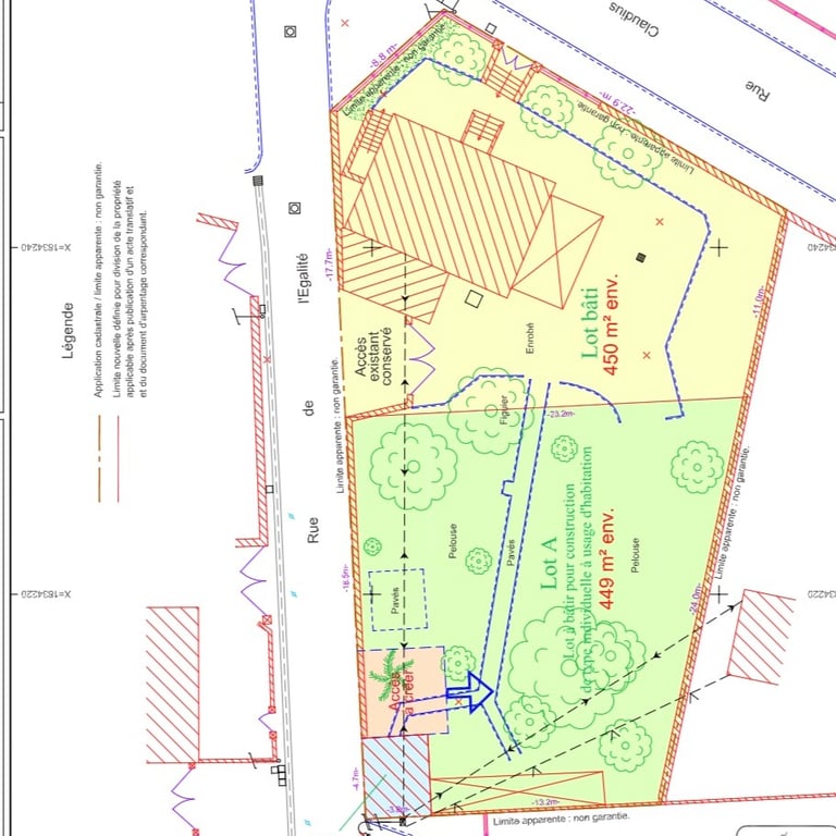
TERRAIN 467 M²
120 000 € *
DESCRIPTION
Situé proche du centre Villefranche sur Saône suite découpe parcellaire, rue de l'égalité
terrain à bâtir de 467 m²,
-viabilité en bordure,
-proche toutes commodités et écoles
-libre constructeur
Notre avis: produit rare à saisir
INFORMATIONS COMPLEMENTAIRES
Diagnostic de performance énergétique (DPE)
Classe Énergie
kWh/m² an
Indice d'émissions de gaz à effet de serre
kgéq/m².an
Pour la nouvelle notation (DPE à partir de juillet 2021), c'est la plus mauvaise des deux performances (énergie, climat) qui est retenue.
Informations sur les risques (ERP)
Les informations sur les risques auxquels ce bien est exposé sont disponibles sur le site Géorisques : https://www.georisques.gouv.fr
* Prix net, hors frais notarié, d'enregistrement et de publicité foncière

